Layout SketchUp: Como Criar Pranchas Profissionais em 2026
O Que é o Layout do SketchUp?
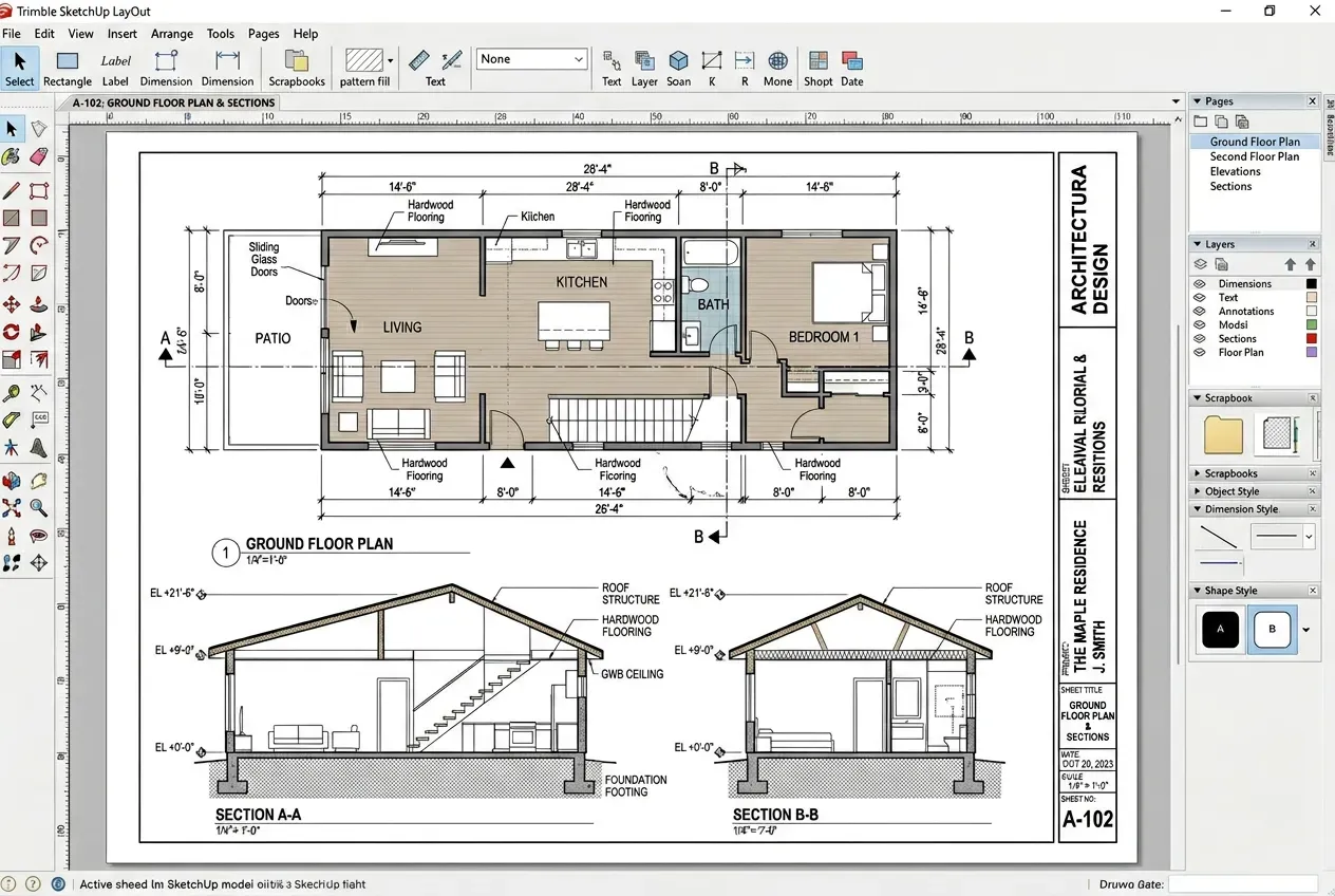
O Layout é o aplicativo de documentação que acompanha o SketchUp Pro. Enquanto o SketchUp é onde você modela em 3D, o Layout é onde você transforma esse modelo em pranchas técnicas profissionais — com plantas, cortes, elevações, cotas e detalhes construtivos.
Muitos arquitetos subestimam o Layout, preferindo exportar para o AutoCAD. Mas em 2026, o Layout evoluiu o suficiente para ser a ferramenta principal de documentação para projetos residenciais e comerciais de pequeno e médio porte.
Configurando Seu Template
O primeiro passo para pranchas profissionais é criar um template personalizado. Isso economiza horas em cada projeto:
- Formato: A1 (841×594mm) para impressão ou A3 para digital
- Margem: 10mm em todas as bordas
- Carimbo: Nome do escritório, projeto, data, escala, prancha nº
- Layers: Crie layers para textos, cotas, hachuras e viewports
- Estilos de texto: Defina fontes e tamanhos para títulos, subtítulos e notas
Dica: salve seu template em Arquivo > Salvar como Template para reutilizar em todos os projetos.
Inserindo Viewports do SketchUp

A mágica do Layout está nos viewports vinculados. Quando você insere uma vista do SketchUp, ela permanece conectada ao modelo original:
- Atualizações automáticas: Mudou o modelo? O Layout atualiza
- Múltiplas cenas: Use Cenas do SketchUp para planta baixa, cortes e perspectivas
- Escalas independentes: Cada viewport pode ter sua própria escala
- Estilos visuais: Aplique estilos diferentes para cada vista (técnico, artístico, sombreado)
Para quem já domina a criação de planta baixa no SketchUp, o Layout é a extensão natural do workflow.
Cotas e Anotações
O sistema de dimensionamento do Layout é robusto:
- Cotas lineares: Clique em dois pontos para dimensionar automaticamente na escala
- Cotas angulares: Para telhados e elementos inclinados
- Labels: Setas com texto para identificar ambientes e materiais
- Auto-text: Campos dinâmicos para data, nome do projeto e número da prancha
Dicas de Diagramação Profissional

Uma prancha profissional não é só informação — é comunicação visual. Aplique estes princípios:
- Hierarquia visual: Planta baixa maior no centro, cortes menores ao redor
- Espaço em branco: Não tente preencher cada centímetro — respire
- Consistência: Mesmas fontes, espessuras de linha e estilos em todas as pranchas
- Renders integrados: Inclua renders com IA ao lado das plantas técnicas
- Paleta de materiais: Adicione amostras dos materiais como porcelanato especificados
Exportação e Compartilhamento
O Layout exporta em múltiplos formatos:
- PDF (recomendado): Vetorial, leve e universal — ideal para envio ao cliente
- DWG/DXF: Para compatibilidade com AutoCAD
- Imagens (PNG/JPG): Para portfólio e redes sociais
Para apresentações digitais, exporte em PDF de alta qualidade e combine com seus renders em uma apresentação impactante.
Layout vs AutoCAD: Quando Usar Cada Um
O Layout não substitui o AutoCAD em projetos complexos com múltiplas disciplinas. Mas para projetos residenciais e interiores, o workflow SketchUp + Layout é mais rápido, mais visual e perfeitamente adequado para aprovação e execução.
Em 2026, a tendência é clara: quanto mais integrado seu workflow, mais produtivo você é. E nenhum combo é mais integrado que SketchUp + Layout.
Transforme seus projetos com o Collection
Render com IA em 30s, +21.000 blocos 3D de +1.000 marcas reais. Grátis pra começar.
Testar Grátis →📖 Leia também:
📖 Leia também:
📖 Leia também:
📖 Leia também:
📖 Leia também:
📖 Leia também:
📖 Leia também:
📖 Leia também:
📖 Leia também:
📖 Leia também:
📖 Leia também:
📖 Leia também:
Perguntas Frequentes
Quais são os principais elementos a considerar ao criar uma prancha no SketchUp?
Os principais elementos incluem a organização dos modelos 3D, a escolha de escalas adequadas e a inclusão de legendas e anotações que ajudem na compreensão do projeto. Além disso, é importante usar uma paleta de cores harmoniosa e definir um layout que facilite a leitura das informações.
Como posso exportar minhas pranchas do SketchUp para formatos profissionais?
Você pode exportar suas pranchas utilizando a ferramenta de exportação do SketchUp, escolhendo formatos como PDF ou imagem de alta resolução. É fundamental ajustar as configurações de exportação para garantir que a qualidade e as dimensões estejam corretas para impressão.
É possível integrar outros softwares ao SketchUp para melhorar o layout das pranchas?
Sim, muitos profissionais utilizam softwares como LayOut, AutoCAD ou Adobe InDesign em conjunto com o SketchUp para aprimorar a apresentação das pranchas. Essas integrações permitem adicionar elementos gráficos e textos de forma mais sofisticada.
Quais são as melhores práticas para a apresentação visual das pranchas?
As melhores práticas incluem manter um equilíbrio entre texto e imagens, usar fontes legíveis e evitar poluição visual. Também é recomendado utilizar grids para alinhar os elementos e manter uma consistência estética em toda a prancha.
Leia também: